Scolaire
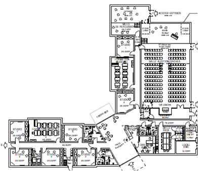
CREATION D’UNE ECOLE DE MUSIQUE MUNICIPALE Rue des Carrières 45140 ORMES
Réf. RT 2012
Description de l’opération :
- alimentation en gaz de la mini-chaufferie.
- production calorifique par chaudières à condensation.
- création de réseaux de chauffage bi-tube régulés.
- Émission par radiateurs acier panneau.
- Emission par plancher chauffant pour les pièces de grands volume et les dégagements.
- Traitement d’air de la salle polyvalente par centrale
- Ventilation double flux du bâtiment.
- Ventilation simple flux des locaux à forte pollution.
- Réseau primaire eau froide générale.
- La production ECS électrique.
- Réseaux secondaires eau froide – eau chaude.
- Évacuation des eaux usées.
Mission du bureau d’études : Conception générale
- Estimation des travaux
- Établissement des CCTP pour les lots Chauffage Ventilation Plomberie Sanitaires.
- Calcul thermique réglementaire RT 2012.
- Visa des plans et notes de calculs des entreprises.
- Suivi des travaux.
Lot Plomberie Sanitaires et Ventilation
Montant des travaux : 220 000 € H.T
Surface : 585.68 m²
Maître d’ouvrage :

Génie




